Apartment in Plagne Villages by Ski Slopes

Apartment in La Plagne

Apartment 50899

Self catering, Sleeps 4, 1 bedroom, 1 bathroom

Location type: Mountains, Ski resort

Check Availability & Book

Quick Links: Accommodation in La Plagne | Apartments in La Plagne | Self catering Apartments in La Plagne

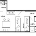
High above the serene alpine landscapes of Plagne Villages, this charming studio apartment offers a front-row seat to the slopes and a cozy retreat for up to four guests. Imagine waking up to the crisp mountain air and stepping out onto your south-facing balcony, where the sun-drenched views of the pistes invite you to embrace the day’s adventures. With its direct ski-in, ski-out access, this residence is a haven for snow enthusiasts and nature lovers alike. \n\nInside, the studio is thoughtfully designed to maximize comfort and functionality. The open-plan kitchen is equipped with modern amenities, including ceramic hobs, a combination oven, a refrigerator, and a dishwasher, making meal preparation a breeze. The living area features a dining space, a television, and two single pull-out beds, while the cozy sleeping nook, separated by a curtain, offers bunk beds perfect for families or small groups. A well-appointed bathroom with a bathtub and integrated toilet completes the space, ensuring a relaxing stay. \n\nConveniently located in the heart of Plagne Villages, the residence places you steps away from local shops and dining options. For added convenience, the free TELEBUS cable car connects you to the vibrant Plagne Centre, offering even more activities and amenities. Whether you’re carving through fresh powder in winter or exploring scenic trails in summer, this studio is the perfect base for your alpine getaway. \n\nWith its unbeatable location, modern comforts, and breathtaking views, this property promises an unforgettable mountain escape for every season.

Property Features: Apartment

Check Availability & Book

General information

Property type Apartment
Catered Self catering
Holiday theme Walking holiday, Summer holidays, Ski Holidays

Accommodation information

Bedrooms

1 bedroom, sleeps maximum of 4 people

Bathrooms

1 bathroom

On-site facilities

Household Dishwasher, Oven

balcony

Other facilities Balcony / Terrace

Quick Links: La Plagne Apartments with pools | La Plagne Apartments with hot tubs | La Plagne Apartments with log fires | La Plagne ski-in ski-out Apartments

Check Availability & Book

Activities near La Plagne

Great for Walking holiday, Summer holidays, Ski Holidays

Check Availability & Book

Jan 2026
MoTuWeThFrSaSu
293031
1
2
3
4
5
6
7
8
9
10
11
12
13
14
15
16
17
18
19
20
21
22
23
24
25
26
27
28
29
30
31
1
Feb 2026
MoTuWeThFrSaSu
262728293031
1
2
3
4
5
6
7
8
9
10
11
12
13
14
15
16
17
18
19
20
21
22
23
24
25
26
27
28
1
Mar 2026
MoTuWeThFrSaSu
232425262728
1
2
3
4
5
6
7
8
9
10
11
12
13
14
15
16
17
18
19
20
21
22
23
24
25
26
27
28
29
30
31
12345
Apr 2026
MoTuWeThFrSaSu
3031
1
2
3
4
5
6
7
8
9
10
11
12
13
14
15
16
17
18
19
20
21
22
23
24
25
26
27
28
29
30
123
  Unavailable
  Available
  Check-in possible
  Special offer

Please select your travel dates and press "Book Now" to get an exact price and book the property online.

Additional Services & Local Costs:


  • Final Cleaning - From 01-01-1990 Included

  • Pets - From 01-01-1990 Not allowed

  • Bed linen - From 01-01-1990 Present

  • Bath towels - From 01-01-1990 Present

  • Heating - From 01-01-1990 Included

Check Availability & Book

Cookies help us deliver our services. By using our services, you agree to our use of cookies.